Property
Beds
3
Full Baths
1
1/2 Baths
None
Year Built
1900
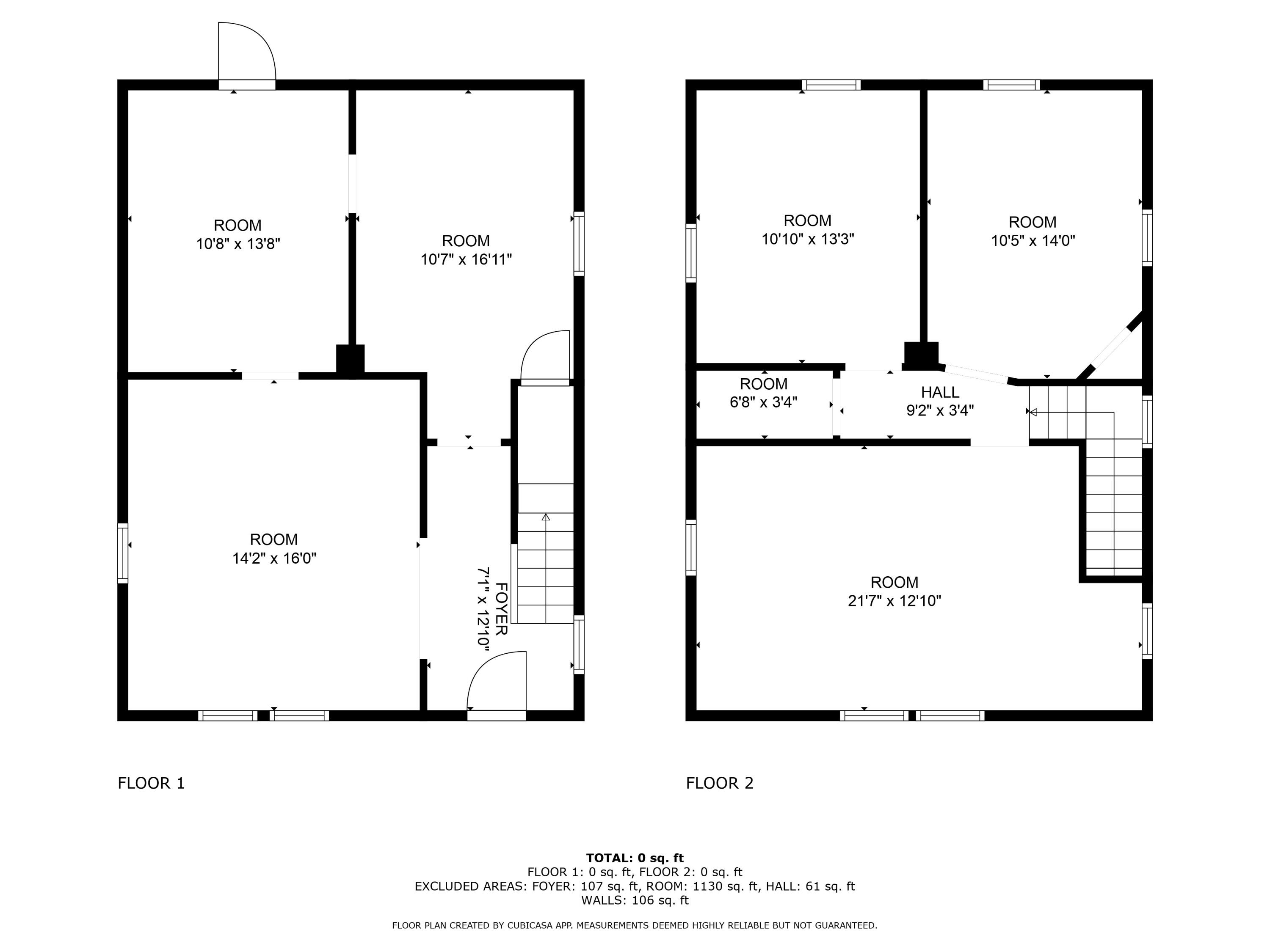
Sq.Footage
1,298
Watch the sunrise over Lake DeFuniak and a clear view of the iconic Chautauqua Hall of Brotherhood. This historic district gem is a rare find and has been professionally leveled, gutted, and rewired and new vinyl privacy fencing - a solid foundation for your restoration vision. Includes the kind of details preservationists love like T&G pine, fabulous hardwood floors, period staircase and original wavy glass windows that remind you why old homes are worth saving. This is old-school craftsmanship at its finest, with the ability to add on as well. The lot is small and low-maintenance, perfect for those who want charm without the upkeep. Walk or bike to the library, downtown, and everything that makes DeFuniak Springs shine. With soul, personality and possibilities, this one's worth a look.
Features & Amenities
Interior
-
Total Bedrooms
3
-
Bathrooms
1
-
Heating YN
NO
-
Heating
None
-
Pet friendly
N/A
Exterior
-
Garage
No
-
Construction Materials
Frame
-
Patio and Porch Features
Porch
-
Pool
No
-
View
Lake
Area & Lot
-
Lot Features
Level
-
Lot Size(acres)
0.12
-
Property Type
Residential
-
Property Sub Type
Single Family Residence
-
Architectural Style
Southern
Price
-
Sales Price
$119,900
-
Zoning
City, Historical, Resid Single Family
-
Sq. Footage
1, 298
-
Price/SqFt
$92
HOA
-
Association
No
School District
-
Elementary School
West Defuniak
-
Middle School
Walton
-
High School
Walton
Property Features
-
Stories
2
-
Sewer
Public Sewer
-
Water Source
Public
Schedule a Showing
Showing scheduled successfully.
Mortgage calculator
Estimate your monthly mortgage payment, including the principal and interest, property taxes, and HOA. Adjust the values to generate a more accurate rate.
Your payment
Principal and Interest:
$
Property taxes:
$
HOA fees:
$
Total loan payment:
$
Total interest amount:
$
Location
County
Walton
Elementary School
West Defuniak
Middle School
Walton
High School
Walton
Listing Courtesy of Kim E Wennerberg , Kim & Company
RealHub Information is provided exclusively for consumers' personal, non-commercial use, and it may not be used for any purpose other than to identify prospective properties consumers may be interested in purchasing. All information deemed reliable but not guaranteed and should be independently verified. All properties are subject to prior sale, change or withdrawal. RealHub website owner shall not be responsible for any typographical errors, misinformation, misprints and shall be held totally harmless.

Broker Associate
KarenHolder
Call Karen today to schedule a private showing.

* Listings on this website come from the FMLS IDX Compilation and may be held by brokerage firms other than the owner of this website. The listing brokerage is identified in any listing details. Information is deemed reliable but is not guaranteed. If you believe any FMLS listing contains material that infringes your copyrighted work please click here to review our DMCA policy and learn how to submit a takedown request.© 2024 FMLS.
